Дома на Лиговском проспекте 251 исторически принадлежали купцу Н.С. Полотнову, дом 253 был Доходным домом А. А. Гиляновой»- неповторимое сочетание духа прошедших эпох и современности для Ваших выгодных инвестиций!
Встречали ли Вы людей, мечтающих о жизни в центре города, в новом доме с высокими потолками и по доступной цене? “Невозможно!”, скажут многие, а мы отвечаем “Возможно всё!”.






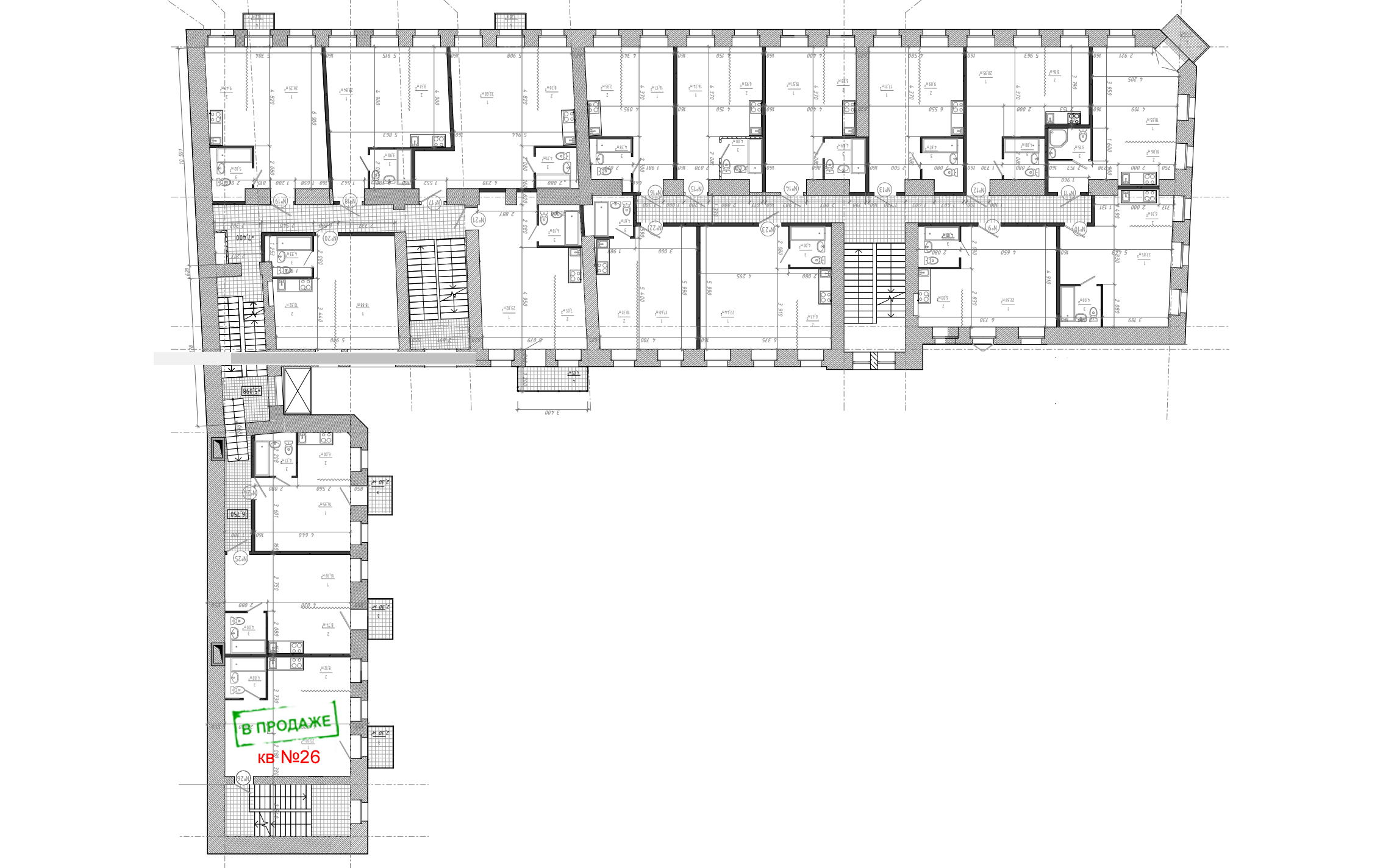
Всего 63 квартиры в доме, малочисленные и культурные соседи - залог комфортного проживания. Внутренние перекрытия и инженерные сети заменены - надежность и качество нового дома за отреставрированным фасадом, сохранившим свой исторический облик.
Современные планировки с множеством окон и просторными комнатами - разместите мебель и технику так, как удобно именно Вам. Высокие потолки от 3,2 метров - помещения наполнены светом и воздухом.